Home
Büroprofil
Unser Team
Projekte
Informationen
Kontakt
Projekte
Home
Projekte
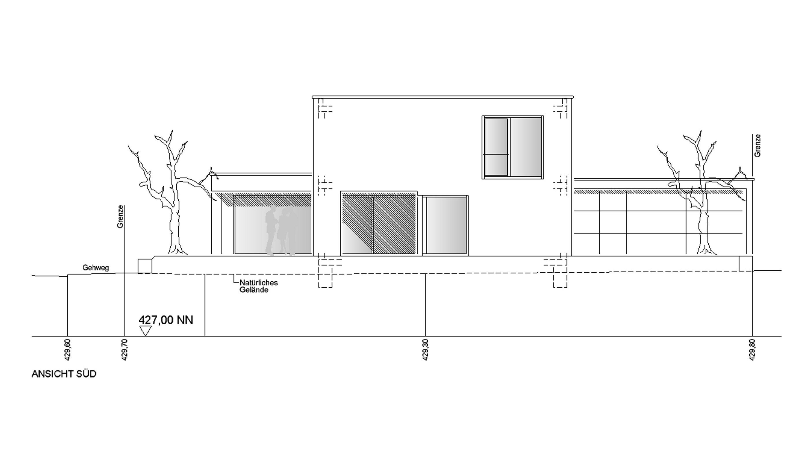
wohnhausbau
Einfamilienwohnhaus mit Garage